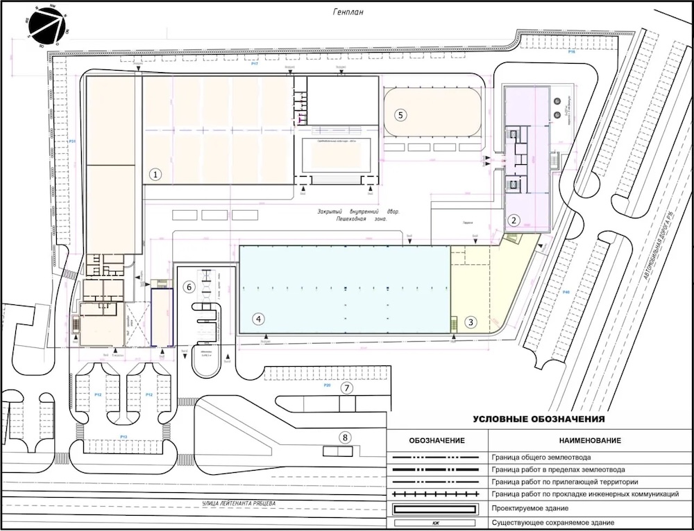
На северной окраине Бреста планируют построить масштабный спортивно-развлекательный комплекс. Участок для строительства зарезервирован на улице Лейтенанта Рябцева, на территории промышленной зоны «Козловичи» в свободной экономической зоне «Брест».

Проект включает как реконструкцию существующих зданий, так и новое строительство, общий размер комплекса составит почти 9,4 тысячи квадратных метров.
Читайте также: Морозы сильнее, чем 14 лет назад: в Брестской области побиты суточные температурные рекорды
Что будет внутри?
Планируется несколько теннисных кортов с профессиональным покрытием, падел-корты с трибунами для соревнований, огромный тренажерный зал и три зала аэробики. Любители скорости смогут покататься на электрокарах по многоуровневой крытой трассе. Кроме того, проект предусматривает баню, кафе, крытый каток и автомойку.
Брестский горисполком приглашает горожан принять участие в общественных обсуждениях архитектурно-планировочной концепции комплекса. Ознакомиться с экспозиционными материалами можно с 9 по 23 февраля в инфоцентре на улице Энгельса, 3 (с 8:30 до 17:30).

Реакция брестчан
Мнения жителей явно разделились: одни видят в проекте долгожданное место для активного отдыха, другие — еще один центр для избранных, на фоне нерешенных городских проблем.
- «Ура! Городу давно нужен такой центр! Супер!!! Скорее бы начали строить!»
- «Будет очень круто. Если реально построят — отличное место для спорта и отдыха всей семьи»
- «Очень-очень нужен такой центр. Молодежь порадуется, взрослым — тоже есть, где заниматься!»
- «Отлично, бассейн надеюсь там тоже предусмотрен!»
Брестчане в комментариях писали, что местоположение для будущего спортивного центра выбрано не самое лучшее.
- «Ага, уже на Сальникова сваи вбили прошлой зимой под аналогичный центр, и что? На этом все…»
- «Задумка интересная, но месторасположение оставляет желать лучшего. До жилых домов далеко, рядом склады и производственные помещения.»
- «От западного обхода еще через все светофоры по Рябцева добираться придется, не очень удобно.»
- «Проект хороший, но сначала детям школу построили бы! Добираются к черту на кулачки, а тут развлекательные центры…»
- «Не окупится этот проект в Бресте. Кто будет сюда ездить из других районов?»
- «Выглядит красиво, но действительно ли туда удобно добираться?»
Еще часть пользователей писали, что лучше бы в городе построили аквапарк. О нем речь идет уже не один год.
- «Лучше бы аквапарк построили, пусть и небольшой.»
- «Спонсору видимо теннис интереснее. А жители города уже несколько мэров спрашивали про аквапарк — никто не услышал.»
- «Загс хотели построить, концертную площадку и аквапарк — а так одни ТРЦ и спортивные комплексы.»
- «Аквапарк не планируют, поэтому часть горожан разочарована.»

Пока проект только обсуждается, а точные сроки строительства остаются неизвестными. Брестчане активно высказываются: кто-то радуется возможности нового спортивного и развлекательного пространства, кто-то критикует месторасположение и сомневается в необходимости комплекса именно здесь.
И только время покажет, сможет ли новый суперцентр стать настоящим украшением Бреста или останется еще одним недоступным проектом для большинства горожан.
Читайте также: Лукашенко изменил закон о дактилоскопии. Все иностранцы и некоторые беларусы будут сдавать отпечатки пальцев на границе
Будь на связи и в безопасности: подключи BGlobal VPN
Наш канал в Telegram. Присоединяйтесь!
Есть о чем рассказать? Пишите в наш Telegram-бот. Это анонимно и быстро



Сообщить об опечатке
Текст, который будет отправлен нашим редакторам: